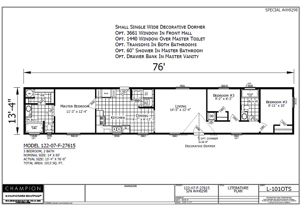
Lot Model # 105 Garfield


Features:
- 14' x 80'
- 3 Bedrooms
- 2 Bath
- 1013 sq. ft.
- Please Note : Latham Homes Can Re-Order this Home with your color choices
Specifications
Construction
*2"x6" Exterior Walls, 16" O.C.
* Wind Zone 1 Construction
*Zone III Insulation (R11/R19/R30)
*Removable Hitches
* Nominal 3/12 Roof Pitch
*Vinyl Siding / Shingle Roof
* Ridge Vent Construction w/Fully Vented Eaves
* 8' Flat Ceiling
* 9 Lite Rear Door
* Low-E Windows
* Deluxe Raised Panel Shutters (Front & Door Side)
* Vinyl Covered Gypsum Interior Panels
Cabinets
*Wood Cabinet Doors w/ Hidden Hinges
*3-Drawer Bank in Kitchen
*Overhead Cabinets Lined w/Center Shelf
*Based Cabinets w/Center Shelf
*Metal Drawer Guides
*Laminate Counter Tops, Edge & Backsplash
*Satin Nickel Cabinet Door Knobs
*Shelf Over Refrigerator
Plumbing & Heating
*Elongated Residential Toilets
*60" Shower in Master Bath
*Stainless Steel Kitchen Sink
*Ceramic Toilet Tank, 1.6 gal flush
*Plumbing for Washer
* Water Shut-off Valves T/O withWhole House Interior Shut-Off
*Bath Vanity Mirrors
*30 gal Water Heater/ Dual Element w/Overflow Drip Pan
*Electric Ignition Gas Furnace
*Porcelain Sinks
Appliances
*18 Cu Ft Auto Defrost Refrigerator
*30" Gas Range
* Dishwasher
* Opt Transoms in both bathrooms
Floor Coverings
*Linoleum Flooring,
*Shaw Carpet W/#5 Carpet pad
Electric & Lighting
*100 AMP Panel Box
*Bath Exhaust Fans, *Wire & Vent for Dryer
*GFI at Kitchen Counters & Bath Vanities
*Patio Lights Front & Rear Doors
*Exhaust Vent Fan w/Light Kitchen
Miscellaneous
*1-1/2" Ceiling Molding
*Pre-hung White Interior Passage Doors
*Satin Nickel Passage Door Knobs
*Floor Level Metal Door Stops
*Vented Shelving Through out
*Towel & Tissue Holders in Bathroom
*Color Coordinated Drapery PKG
*Mini Blinds All Operating Windows
